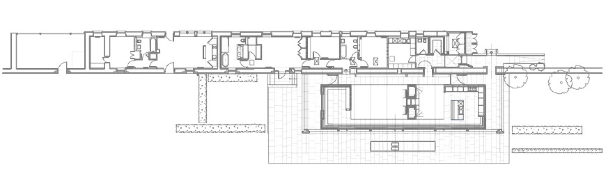
Balcarres Bothies, Fife
Recent snapshots pending professional photographs!
<
back
<
back